Description
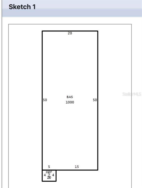
Introducing one of 23 professional office units located within the newly renovated East Saint Cloud Commerce Parkan exceptional investment opportunity in a supply-constrained submarket where office spaces of this caliber are rarely available. The Commerce Park recently underwent an improvements , enhancing both curb appeal and long-term value. Each unit offers between 940 and 1,000 square feet of flexible, high-demand office space in the heart of one of Central Florida's fastest-growing markets. With strong tenant demand and limited inventory, this asset offers both immediate income and long-term appreciation. Ideal for investors seeking a stable, income-generating property in a thriving commercial corridor. Don't miss this rare opportunitycall today for more information.
-
0BEDS
-
1.76ACRES
-
0BATHS
-
01/2 BATHS
School Ratings & Info
Description
Introducing one of 23 professional office units located within the newly renovated East Saint Cloud Commerce Parkan exceptional investment opportunity in a supply-constrained submarket where office spaces of this caliber are rarely available. The Commerce Park recently underwent an improvements , enhancing both curb appeal and long-term value. Each unit offers between 940 and 1,000 square feet of flexible, high-demand office space in the heart of one of Central Florida's fastest-growing markets. With strong tenant demand and limited inventory, this asset offers both immediate income and long-term appreciation. Ideal for investors seeking a stable, income-generating property in a thriving commercial corridor. Don't miss this rare opportunitycall today for more information.
© 2026 My Florida Regional MLS DBA Stellar MLS. All rights reserved. All listings displayed pursuant to IDX. All listing information is deemed reliable but not guaranteed and should be independently verified through personal inspection by appropriate professionals. Listings displayed on this website may be subject to prior sale or removal from sale; availability of any listing should always be independently verified. Listing information is provided for consumers personal, non-commercial use, solely to identify potential properties for potential purchase; all other use is strictly prohibited and may violate relevant federal and state law. Data last updated 2026-03-08T11:44:41.593.
