Description
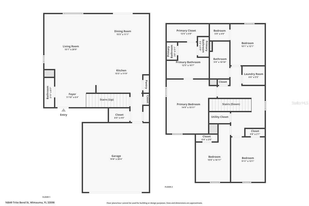
Under contract-accepting backup offers. Welcome to this spacious home in the sought-after Southshore Bay, a gated, resort-style Lagoon community! From the moment you step inside, this two-story layout greets you with an open, airy feel. The expansive downstairs space features a seamless flow between the living room, dining area, and kitchen. A convenient powder room and covered patio complete the first floor. The kitchen features a large granite island. You'll love the abundance of cabinets, counter space, and the roomy pantry. The two-car garage opens directly into the kitchen area, with dual hallway closets offering generous storage. On the second floor, the primary bedroom features a luxurious en-suite bath with double vanity, a spacious walk-in closet, and a separate linen closet. Three additional bedrooms share a second full bath with double sinks, and one of the bedrooms offers its own walk-in closet. At the top of the stairs you will find a cozy loft area and reading nook. The washer and dryer are located upstairs, close to the bedrooms. Step outside to your large, fenced backyard—perfect for pets, play, or soaking up the Florida sun. This home gives you access to an incredible list of amenities: A stunning 5-acre Crystal Lagoon with swim-up bar and sandy beaches, recently upgraded UltraFi high-speed internet (among the fastest in the nation!), Resort-style swimming pool, Fitness center, Walking trails, Dog park, 24-hour security at the main entrance. Located minutes from I-75 and US-301, giving you easy access to Tampa, the airport, and the beautiful Gulf Coast beaches.
-
4BEDS
-
0.11ACRES
-
2BATHS
-
11/2 BATHS
-
2,048SQFT
-
$146$/SQFT
School Ratings & Info
Description
Under contract-accepting backup offers. Welcome to this spacious home in the sought-after Southshore Bay, a gated, resort-style Lagoon community! From the moment you step inside, this two-story layout greets you with an open, airy feel. The expansive downstairs space features a seamless flow between the living room, dining area, and kitchen. A convenient powder room and covered patio complete the first floor. The kitchen features a large granite island. You'll love the abundance of cabinets, counter space, and the roomy pantry. The two-car garage opens directly into the kitchen area, with dual hallway closets offering generous storage. On the second floor, the primary bedroom features a luxurious en-suite bath with double vanity, a spacious walk-in closet, and a separate linen closet. Three additional bedrooms share a second full bath with double sinks, and one of the bedrooms offers its own walk-in closet. At the top of the stairs you will find a cozy loft area and reading nook. The washer and dryer are located upstairs, close to the bedrooms. Step outside to your large, fenced backyard—perfect for pets, play, or soaking up the Florida sun. This home gives you access to an incredible list of amenities: A stunning 5-acre Crystal Lagoon with swim-up bar and sandy beaches, recently upgraded UltraFi high-speed internet (among the fastest in the nation!), Resort-style swimming pool, Fitness center, Walking trails, Dog park, 24-hour security at the main entrance. Located minutes from I-75 and US-301, giving you easy access to Tampa, the airport, and the beautiful Gulf Coast beaches.
Related Properties
© 2025 My Florida Regional MLS DBA Stellar MLS. All rights reserved. All listings displayed pursuant to IDX. All listing information is deemed reliable but not guaranteed and should be independently verified through personal inspection by appropriate professionals. Listings displayed on this website may be subject to prior sale or removal from sale; availability of any listing should always be independently verified. Listing information is provided for consumers personal, non-commercial use, solely to identify potential properties for potential purchase; all other use is strictly prohibited and may violate relevant federal and state law. Data last updated 2025-12-10T14:46:06.357.
