Description
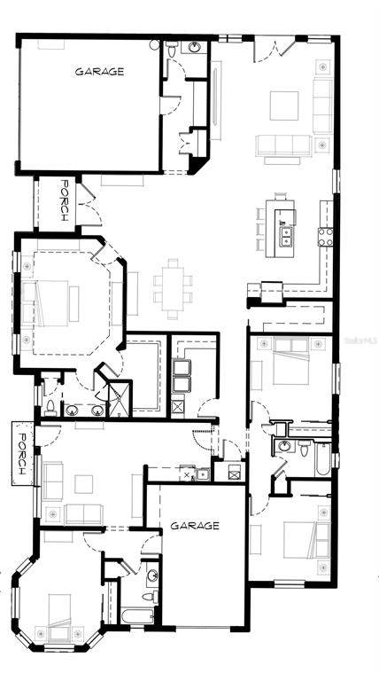
Under Construction. Discover an extraordinary opportunity to own a brand-new luxury residence thoughtfully designed for comfort, versatility, and modern sophistication. Priced at $1,050,000, this stunning new construction offers a rare attached 1-bedroom, 1-bath in-law apartment with it's own 1 car garage perfect for extended family, guests, or private office space. The main home offers an open split floor plan, luxury designer kitchen, 32" polished porcelain tile, and soaring ceilings for a touch of elegance. The primary suite is a true retreat, complete with a spacious walk-in closet, elegant tray ceiling, and a beautiful walk-in shower. Two additional bedrooms and a beautifully appointed full bath provide comfort and style for family or guests. A large laundry room and a 2-car garage add to the home's effortless functionality.Located within a mile of the local hospital, Publix, shopping, and bankingthis property offers modern convenience and timeless style in one of Tampa's most desirable areas. Luxury, versatility, and locationthis one has it all!
-
4BEDS
-
0.24ACRES
-
3BATHS
-
11/2 BATHS
-
3,042SQFT
-
$345$/SQFT
School Ratings & Info
Description
Under Construction. Discover an extraordinary opportunity to own a brand-new luxury residence thoughtfully designed for comfort, versatility, and modern sophistication. Priced at $1,050,000, this stunning new construction offers a rare attached 1-bedroom, 1-bath in-law apartment with it's own 1 car garage perfect for extended family, guests, or private office space. The main home offers an open split floor plan, luxury designer kitchen, 32" polished porcelain tile, and soaring ceilings for a touch of elegance. The primary suite is a true retreat, complete with a spacious walk-in closet, elegant tray ceiling, and a beautiful walk-in shower. Two additional bedrooms and a beautifully appointed full bath provide comfort and style for family or guests. A large laundry room and a 2-car garage add to the home's effortless functionality.Located within a mile of the local hospital, Publix, shopping, and bankingthis property offers modern convenience and timeless style in one of Tampa's most desirable areas. Luxury, versatility, and locationthis one has it all!
© 2026 My Florida Regional MLS DBA Stellar MLS. All rights reserved. All listings displayed pursuant to IDX. All listing information is deemed reliable but not guaranteed and should be independently verified through personal inspection by appropriate professionals. Listings displayed on this website may be subject to prior sale or removal from sale; availability of any listing should always be independently verified. Listing information is provided for consumers personal, non-commercial use, solely to identify potential properties for potential purchase; all other use is strictly prohibited and may violate relevant federal and state law. Data last updated 2026-01-18T11:44:05.243.
